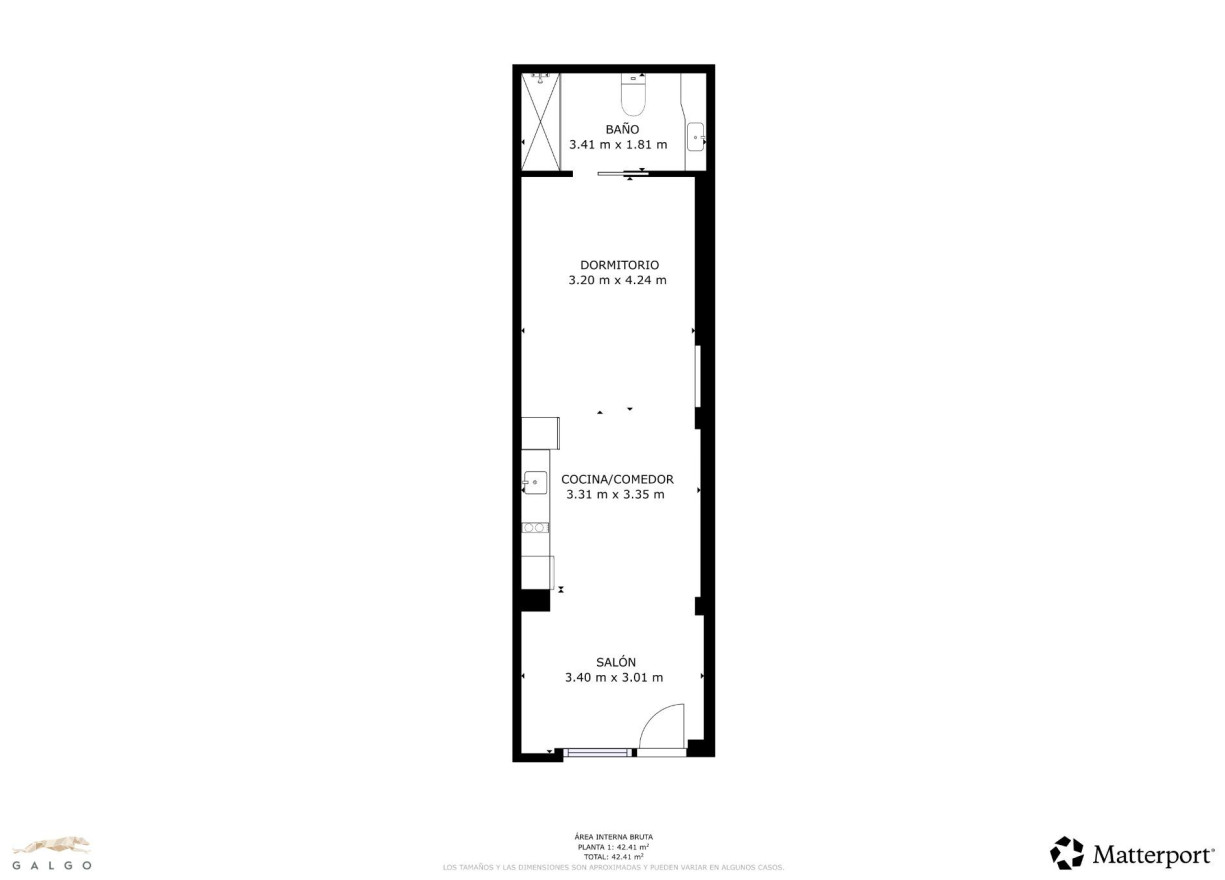
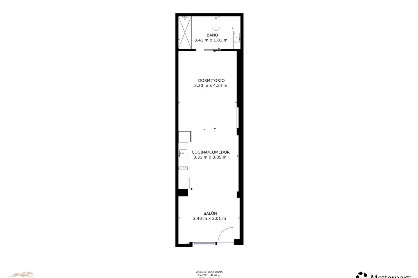
GALGO REAL ESTATE presenteert dit charmante, gerenoveerde studio-appartement in Nazaret, een van de meest veelbelovende wijken van Valencia. Het design combineert moderniteit, functionaliteit en comfort en creëert zo een ideale ruimte voor wie op zoek is naar een praktische en stijlvolle woning.
Het appartement beschikt over een volledig uitgeruste keuken, een complete badkamer en een warmtepomp voor airconditioning, wat het hele jaar door comfort garandeert. De eigentijdse afwerking en open indeling zorgen voor ruimtelijkheid en veel natuurlijk licht, waardoor het appartement direct bewoonbaar is.
Gelegen in een gebied dat een aanzienlijke stedelijke transformatie ondergaat, biedt deze woning uitstekende verbindingen met het centrum van Valencia en een comfortabele woonomgeving dankzij de nabijheid van allerlei voorzieningen: supermarkten, een gemeentelijk sportcentrum, een gezondheidscentrum, de metro en bushaltes, allemaal op loopafstand.
De strategische locatie maakt het niet alleen een charmante woning, maar ook een investeringskans met een hoog rendement en potentieel voor toekomstige waardestijging.
Zoekt u een moderne, goed bereikbare ruimte met een stedelijke uitstraling? Dan is deze studio in Nazaret iets voor u.
Wij spreken Spaans, Engels en Duits.
U vindt al onze woningen op onze website: galgorealestate.com. We horen graag van u!
De informatie in deze advertentie is verstrekt door de eigenaar, dient uitsluitend ter informatie en is niet bindend. Deze informatie kan fouten bevatten of om commerciële of contractuele redenen worden gewijzigd.