IMPORTANTE SOLO SE ALQUILA COMO OFICINA.
GALGO REAL ESTATE alquila magnifico local comercial, adaptado a oficina, situada a pie de calle en la calle Pintor Salvador Abril de RUZAFA.
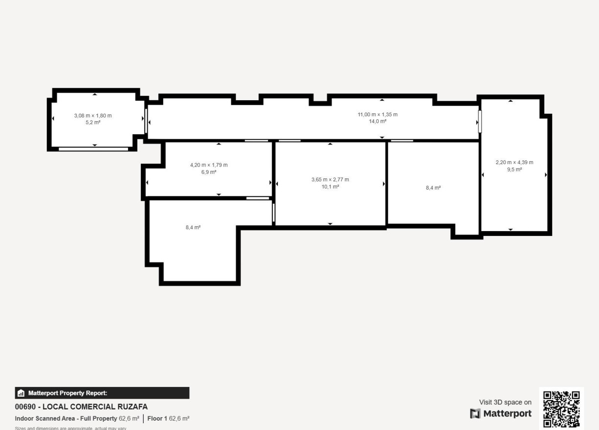
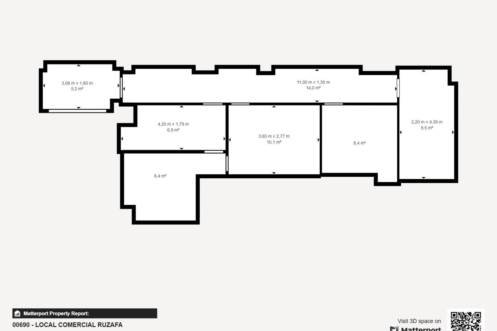
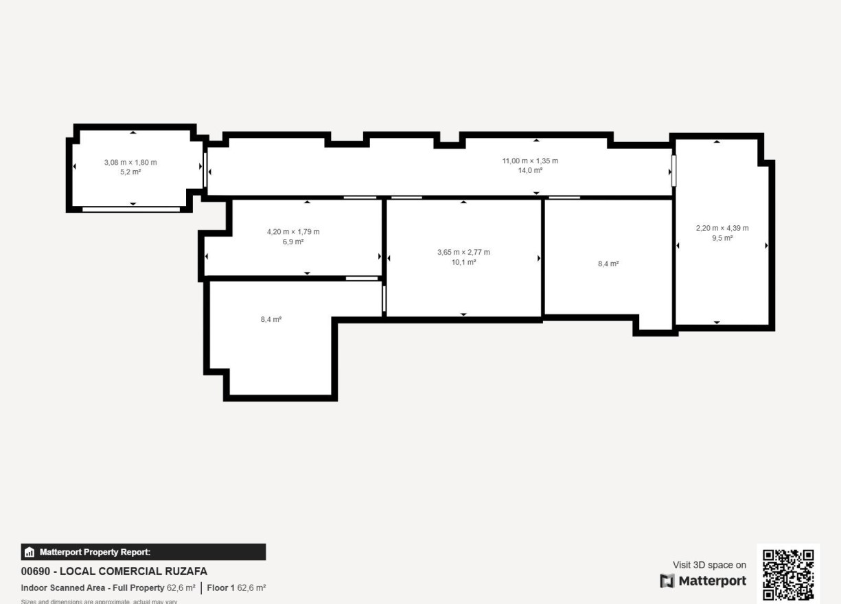
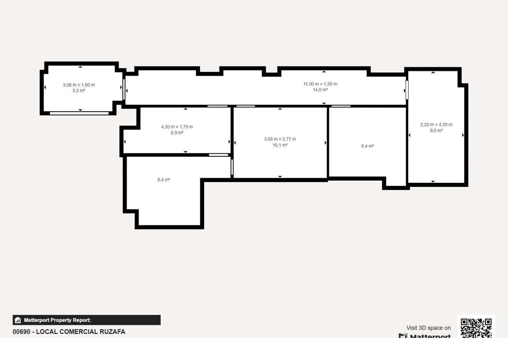
El local consta de 90 m2 según catastro, distribuidos en recepción, cuatro estancias de trabajo independientes (actualmente una de ellas adaptada a sala de reuniones), archivo y un aseo.
Todos los despachos cuentan con splits de aire acondicionado frio-calor y muebles de archivo.
Persiana motorizada y puerta corredera con sensor.
Posibilidad de alquilarse con el mobiliario.
Plaza de garaje opcional en el parking del Mercado de Ruzafa.
ACTIVIDAD: OFICINAS
FIANZA: 2 MESES
IBI Y COMUNIDAD LO PAGA EL INQUILINO:
IBI - 162€
COMUNIDAD 150€ TRIMESTRE
¡No deje escapar esta magnífica ocasión! Llámenos para concertar una visita.
Atendemos en español e inglés.
En nuestra página web puedes encontrar todas las propiedades que comercializamos, galgorealestate. com. ¡Te estamos esperando!
La información de este anuncio ha sido facilitada por la propiedad, es meramente informativa y no contractual, pudiendo incluir errores o sufrir modificaciones por motivos comerciales o contractuales.