GALGO REAL ESTATE comercializa esta espectacular vivienda en unos de los mejores tramos de PLA DE REMEI, muy cerca de los Jardines del Río Turia y de la calle Sorni.
El piso se encuentra de origen y tiene una distribución perfecta para hacerse una reforma con una distribución de ensueño. La propiedad cuenta con DOS PLAZAS DE GARAJE en el mismo edificio.
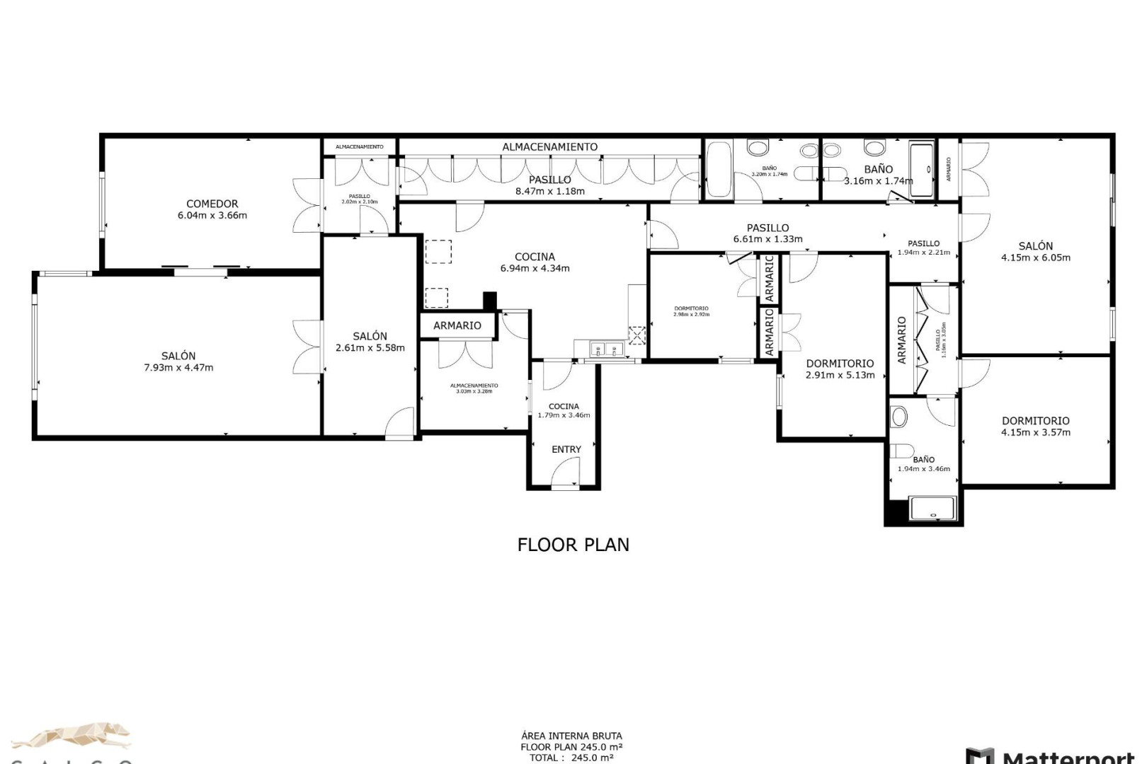
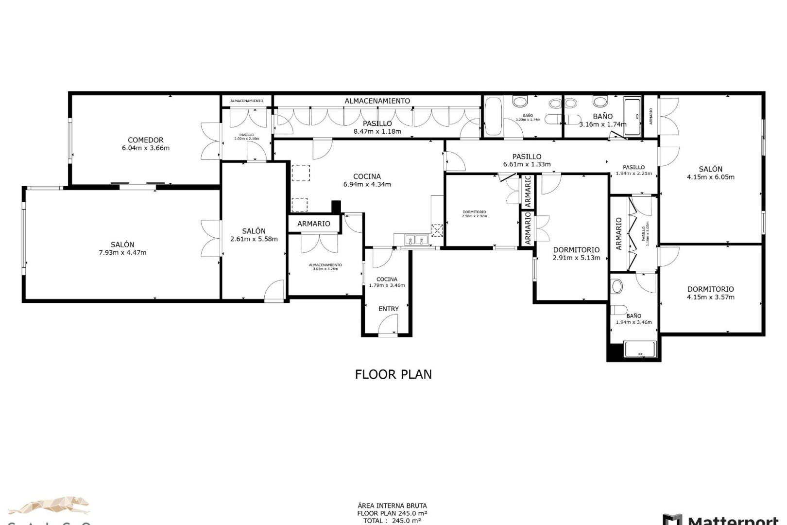
La propiedad cuenta con 290 m2 construidos, la distribución actual consta de un amplio y luminoso salón - comedor con balcón, una cocina muy amplia con habitación de servicio, cuatro dormitorios adicionales y tres baños completos (uno de ellos integrado en la habitación principal). El piso tiene ventilación cruzada y un balcón a cada lado.
Esta propiedad es apta para los más exigentes, estamos seguros de que no te va a defraudar. La propiedad se encuentra en uno de los mejores edificios de Pla del Remei. La propiedad cuenta con dos accesos independientes, la entrada principal y la antigua entrada de servicio.
Ubicación inmejorable en una de las calles más emblemáticas y cotizadas de Valencia. Rodeada de tiendas exclusivas, restaurantes de renombre, museos y zonas históricas, se encuentra a pocos minutos del Mercado de Colon, lo que la convierte en el lugar ideal para vivir en el centro de la ciudad, con todos los servicios a su alcance.
¡No deje pasar la oportunidad de vivir en esta propiedad única! Contáctenos para más información y para agendar su visita.
Atendemos en español, inglés y alemán.
En nuestra página web puede encontrar todas las propiedades que comercializamos: galgorealestate.com. ¡Te estamos esperando!
La información de este anuncio ha sido facilitada por la propiedad, es meramente informativa y no contractual, pudiendo incluir errores o sufrir modificaciones por motivos comerciales o contractuales.